Todo proyecto de construcción civil necesita de planos y más documentos para su ejecución. Entre los planos necesarios están los arquitectónicos, estructurales y de instalaciones.
Para que la construcción se realice con un bajo número de imprevistos (dada su complejidad, resulta imposible prever todas las acciones que se ejecutan en una obra) es importante detallar el proyecto, tanto como sea posible y verificar que exista coherencia entre los varios documentos. A continuación se detallan los planos necesarios antes de empezar cualquier construcción.

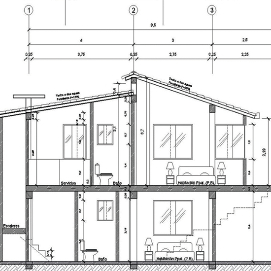
Planos arquitectónicos
Es el primer juego de planos que detalla el aspecto visual y la distribución interna de una edificación. En estos planos se encuentran dibujos arquitectónicos como implantaciones, plantas, fachadas, cortes, detalles y perspectivas.
Los planos arquitectónicos deben ser firmados por un arquitecto que posee el carné profesional otorgado por la entidad competente, según el emplazamiento del proyecto.

Planos estructurales
Corresponden al juego de planos que detallan la estructura de la edificación. Los planos estructurales incluyen: planos de cimentaciones, losas, columnas, cubierta, planillas de hierros y detalles estructurales.
Estos planos deben ser firmados por el ingeniero civil que ha calculado la estructura. Un ingeniero mecánico puede firmar planos estructurales siempre y cuando se trate de una estructura metálica.

-
Te sugerimos leer también: Interpretación y Lectura de Planos Estructurales parte 1.
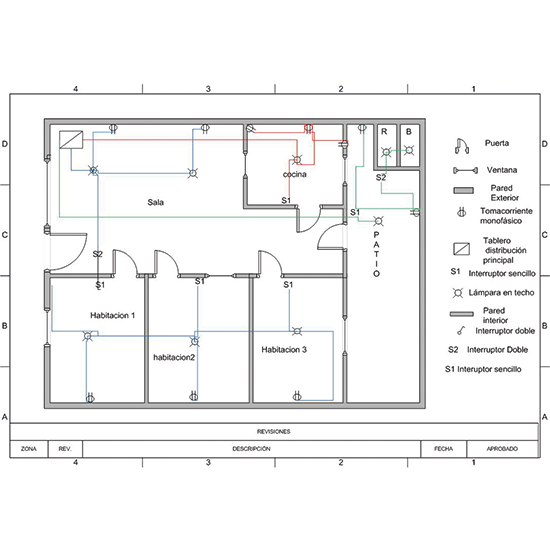
Planos de instalaciones
Es el conjunto de planos de instalaciones eléctricas/electrónicas, hidráulicas/sanitarias y mecánicas. Esta clasificación se subdivide ulteriormente de la siguiente manera:
- Instalaciones eléctricas/electrónicas: planos de iluminación, tomacorrientes, voz y datos, evacuación, seguridad, sonido, etc.
- Instalaciones hidráulicas/sanitarias: planos de agua potable, red contraincendios, agua lluvia, aguas servidas, etc.
- Instalaciones mecánicas: planos del sistema de aire acondicionado, ascensores, ventilación forzada, entre otros.
De acuerdo al proyecto, puede haber diferentes tipos de instalaciones. Cada plano debe ser firmado por el ingeniero eléctrico, mecánico, civil o hidrosanitario respectivos según la especialización.

Importante: Si el proyecto tiene un área útil menor a 500 metros cuadrados y el número de edificaciones no supera las 2 unidades, el arquitecto proyectista puede firmar también los planos eléctricos e hidrosanitarios.
-
También puede interesarte: Interpretación y Lectura de Planos Estructurales parte 2.
Leave a comment