Home Capacitaciones MÓDULO 2 – LECTURA DE PLANOS: ESTRUCTURALES Y ELÉCTRICOS
CapacitacionesLectura e Interpretación de Planos

MÓDULO 2 – LECTURA DE PLANOS: ESTRUCTURALES Y ELÉCTRICOS

Share
Share

Tanto los planos estructurales como también los eléctricos deben ser de fácil interpretación y estar bien definidos y cotados cada uno de sus elementos.

 

 

Los planos de una obra contienen información sobre la construcción que se va a realizar, la cual se representa con gráficos y símbolos que deben interpretarse correctamente para poder llevar a cabo la edificación. Estos deben tener información de fácil interpretación, estar bien definidos y acotados cada uno de sus elementos, facilitando su manejo y así poder ubicarlos o replantearlos en la obra. Los componentes principales de un plano son:

 

 

  1. Ejes.
  2. Acotaciones.
  3. Nombre de los espacios.
  4. Representación gráfica.
  5. Tipos de planos.
  6. Escala.
  7. Norte.
  8. Número de plano.
  9. Simbología y especificaciones técnicas.

 

 

 

 

Acotaciones

 

Las acotaciones son líneas que aparecen enseguida de los ejes. Las acotaciones son líneas continuas y se dividen en:

 

  • Cotas generales.
  • Cotas parciales.
  • Cotas específicas.

 

 

Planos Estructurales

 

Los planos estructurales contienen la información en detalle de los elementos estructurales como son: cimientos, zapatas, plintos, columnas, losas, dimensiones y ubicación en planta y corte. Es importante conocer que en los planos estructurales la simbología determina cuántas varillas lleva el elemento estructural, el diámetro del acero, el espaciamiento entre cada elemento de acero, la fluencia del acero y la resistencia del hormigón.

 

Un buen diseño estructural requiere entender la manera en que se sostiene la estructura, así como la forma en la que absorbe y transmite las fuerzas, además es necesario conocer la resistencia y demás propiedades de los materiales con los cuales se edificará la estructura.

 

Todas las estructuras tienden a deformarse, a sufrir agrietamientos, a tener algún tipo de asentamiento, pero debe existir un criterio adecuado para establecer los márgenes de seguridad necesarios que llevarán a un buen diseño. Podemos definir al diseño estructural como un conjunto de actividades, a desarrollar para determinar las características físicas de una estructura, de tal manera que permitan garantizar la absorción de las cargas a las que ésta va a estar sujeta en las diferentes etapas de su vida útil, sin sufrir daño alguno; es decir, la función adecuada de una estructura en condiciones de servicio.

 

 

 

 

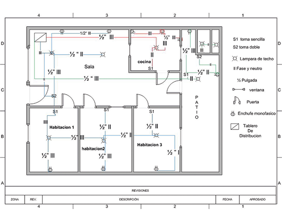
Planos Eléctricos

 

En los planos eléctricos se usa la simbología para graficar: tableros de medidor, punto de alumbrado, interruptor, tomacorriente y puntos de: teléfono, tv, internet, etc. Se establece las medidas por ejemplo, tomacorriente a 60 cm del contra piso, interruptor a 1,80 cm del contra piso, punto de alumbrado en el tumbado o losa.

 

La leyenda del plano es la clave para interpretar la variedad de símbolos específicos de la industria eléctrica utilizados en el diagrama; normalmente ésta se encuentra en una esquina. Para interpretar los mismos se deberá revisar los símbolos en la leyenda del plano, porque estos son los que se utilizan en todo el resto del proyecto.

 

Al interpretar un plano eléctrico, deberás iniciar en una sección del mismo, como el vestíbulo, y tomar nota de cada símbolo representado en ese espacio. Iguala el símbolo en ésta sección con la leyenda del plano para identificar su función. Ciertos símbolos son evidentes, dependiendo de dónde se encuentren en el diagrama. Por ejemplo: los símbolos en la parte del plano que representa la puerta de entrada representan un timbre, que se asemeja a un cuadrado unido a un palo, o una luz de entrada genérica, un círculo con líneas salientes. Sigue las líneas de color blanco o negro de un símbolo a otro. Esto demuestra cómo las líneas de transmisión eléctrica están conectadas en toda la casa.

 

Las líneas continuas gruesas representan paredes de media altura. Las líneas continuas delgadas simbolizan estructuras integradas. Esto ayuda a la comprensión de dónde están ubicados y conectados los componentes eléctricos. Por ejemplo: un interruptor en una línea continua delgada en el esquema del dormitorio puede indicar la alimentación del interruptor para un soporte de TV.

 

 

 

 

Agradecimiento a: Ing. Max Almeida Franco, MSc. e Ing. Fausto Cabrera Montes, MSc.

 

 

 

 

 

Share

2 Comments

Deja una respuesta

Tu dirección de correo electrónico no será publicada. Los campos obligatorios están marcados con *