Home Capacitaciones PLANO DE INSTALACIONES SANITARIAS PARA VIVIENDAS
CapacitacionesOBRA GRIS

PLANO DE INSTALACIONES SANITARIAS PARA VIVIENDAS

Share
Share

Toda construcción requerirá de planos sanitarios, las tuberías deberán ser ejecutadas en detalle por el equipo de instalaciones sanitaria en obra. Las partes integrantes de un diseño sanitario:

 

– Plano sanitario.

– Estudio demanda de caudal.

– Memoria técnica descriptiva del proyecto.

– Especificaciones técnicas de los materiales a utilizar.

– Especificaciones de construcción.

 

Plano Sanitario

 

Su presentación se debe realizar en uno de los formatos estandarizados: A4, A3, A2, A1 y A0 que existen. Los formatos más adecuados para manejar en obra son los A2 y A1, con las limitaciones que implica la relación entre las medidas reales y la escala asumida para el dibujo y/o el ajuste que se requiera para su impresión.

 

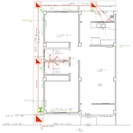
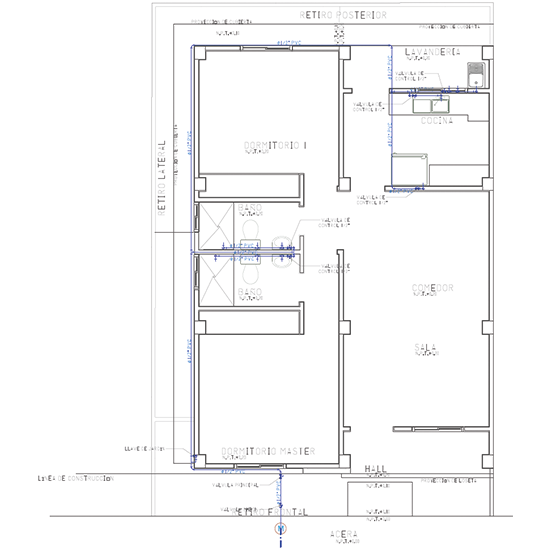
El plano de instalaciones sanitarias es la representación gráfica del desarrollo de: redes de agua (A.A.P.P), desagüe o aguas servidas (A.A.S.S), agua lluvias (A.A.L.L), válvulas, accesorios. También diámetros de tuberías y accesorios que las unen y controlan el caudal, así como la ubicación y características de los equipos y piezas sanitarias que permiten el funcionamiento y servicio.

 

 

 

 

 

 

Existen varios aspectos a considerar, al momento de realizar la lectura de planos de Sanitarios:

 

  • Datos informativos: en un cuadro ubicado generalmente en la parte inferior derecha. En él se detallan nombre del propietario, tipo de plano, contenido, descripción de los gráficos presentados en él, nombre del responsable técnico, dibujante, escala, formato, fecha, lamina otros caracteres dependerá de técnico responsable y del informativo que este quiera ser.

 

 

 

 

  • Esquema de emplazamiento Sanitario: es la parte que muestra la vivienda y el predio con sus diferentes ambientes y la representación de las instalaciones sanitarias mediante símbolos.
  • Instalaciones de agua potable: En un plano sanitario la importancia de los diferentes diámetros de tuberías y accesorios a ser utilizados en un sistema de agua potable tienen que tener una nomenclatura clara para una lectura adecuada. En el sistema de distribución de agua potable, todo el trazado y su puesta en obra se deberá realizar de manera ortogonal, o sea, con cambios de dirección a 90°. Deberá estar a no menos de 60 cm de una instalación de aguas servidas, para así evitar contaminación.

 

 

 

 

  • Instalaciones de agua servida y aguas lluvias: la importancia del sistema de aguas servidas y aguas lluvias con relación a la ubicación donde se colocarán con relación a plano-sitio, deberán respetar la ubicación de las cajas de registro con cierta holgura ya que estas están de acuerdo a un análisis de descarga y pendientes requeridas, los diámetros de las tuberías y accesorios varían según la necesidad de descarga, todo esto se encuentra explícito en el plano.

 

 

 

 

  • Detalles: Son gráficos detallados de elementos, accesorios e instalaciones puntuales que gráficamente no pueden ser expresados por símbolos. En estos detalles se exponen dimensiones, especificaciones de materiales.

 

 

 

 

 

  • Simbología: un cuadro que detalla cada símbolo con su respectivo significado, este cuadro es muy importante en la lectura de planos sanitarios.

 

 

 

 

Fuente:

 

 

 

 

 

 

 

 

 

Share

3 Comments

Deja una respuesta

Tu dirección de correo electrónico no será publicada. Los campos obligatorios están marcados con *